
Fantàstic local al carrer Albigesos cantoner amb carrer Sostres.
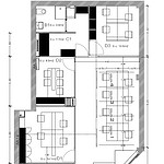
El local gaudeix de tres expositors a carrer que ofereixen gran visibilitat. Distribuït en planta baixa amb accés directe a carrer, consta de zona de recepció, sala comuna adaptada per a 8 llocs de treball, tres despatxos independents adaptats per a 4 llocs de treball cadascun, office i un bany complet amb plat de dutxa.
S'entrega totalment reformat amb acabats d'alta qualitat: il·luminació led, instal·lació elèctrica totalment renovada amb connexió ethernet a cada lloc de treball, aire condicionat fred/calor per conducte i armaris de paret.
S'ofereix de manera opcional adquirir el mobiliari i els equips informàtics per un preu a convenir, no inclòs al lloguer.
Molt bé comunicat amb autobusos i metro Lesseps.
Contacteu directament amb Barnaquatre trucant al 93 488 33 00 per rebre més informació o concertar una visita segons la vostra disponibilitat horària.
Armaris encastats Calefacció individual: Elèctrica Aire condicionat
Bon estat